ETTA IMMO agence immobilière
+33(0)6 38 14 25 88
Rue Paul Saint Martin - 32420 Simorre - France

grande maison de campagne avec gîte sur 1.5ha vue sur les collines


< Retour

Partager sur

gallery loader

Maison 290 m² - 13 Pièces - Simorre 495 000 €


Description de l'offre Ref EI1210


C’est une propriété qui allie confort, espace et potentiel d’agrandissement, tout en étant ancrée dans un cadre paisible et verdoyant. Cela pourrait être parfait pour une famille en double habitation ou même comme projet de location de gîte et/ou chambres d'hôtes. Avez-vous des projets particuliers pour cette maison ou souhaitez-vous des conseils pour sa mise en valeur ? Grand potentiel d'agrandissements en surface habitable ou salle d’accueil.

Voici un résumé de ses points forts :

Bon bilan énergétique : D 193/ A 5

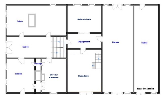
Maison Principale :

RDC :

- Grand salon de 50 m² avec poêle de masse, créant une atmosphère chaleureuse et conviviale

- Cuisine : 22 m²

- Chambre ou buerau au rez-de-chaussée de 20 m²

- Salles de bain : Salle de bain de 17 m² avec baignoire et douche

- Buanderie/Chaufferie : 35 m², pratique pour le rangement

ETAGE :

- 4 chambres de 28 m²: dont 2 avec leurs salle d'eau (dont 2 avec WC) et 1 avec lavabo /dressing
- Possibilité d’agrandissement :200 m² supplémentaires, idéal pour ajouter des chambres ou un vaste séjour.

EXTERIEUR :

- Terrain avec potager, puits, arbres fruitier, dépendances, paddock pour chevaux et étable. Dalle en béton Ø 5m pour piscine hors sol. Terrain de 1.5ha en parti prairie pour chevaux,

GITE :

- Superficie :100 m² alliant confort moderne et un style champêtre chaleureux.

- RDC : Séjour de 50 m² avec poêle à bois et salle d’eau.

- Étage : Mezzanine de 20 m² et 2 chambres au sol de 12 m² et salle d'eau.

- Terrasse couverte

ENVIRONNEMENT :

- Situé dans un havre de paix, entouré de magnifiques arbres et offrant une vue impressionnante, ce lieu semble idéal pour les amoureux de la nature et des animaux, notamment pour ceux qui souhaitent avoir des chevaux.


Equipements :

- chauffage écologique à pellets de bois (2019)

- poêle de masse dans le salon de 50m²

- jolies fenêtres d'origine en bon état et sur-vitrées

- à l’étage double vitrage en PVC

- gîte avec double vitrage en bois (2008)

- terrain clôturé et aménagé pour 4 poneys

- puits dans le jardin


DEPENDANCES :

- étable attenante 14x7 = 110m²

- étable 2 attenante 14x3,5 =50m²

- hangar ouvert 26x5 =130m²

- petit garage gîte ouest 50m²

- double garage est 90m²

- poulailler 70m²

Diagnostics de performance énergétique


DPE
DPE
DPE ANCIENNE VERSION

Descriptif du bien


Code postal 32420


Surface habitable (m²) 290 m²


surface terrain 1,43 ha


Nombre de chambre(s) 7


Nombre de pièces 13


Nombre de niveaux 1


Vue sur les Pyrénées


Nb de salle de bains 1


Nb de salle d'eau 5


Cuisine SEPAREE


Mode de chauffage Granules, Bois, Bois


Type de chauffage TRAD_TYPE_CHAUFF_CHAUDIERE, Poêle, Autre


Format de chauffage Central, Individuel, Individuel


Terrasse OUI


Nombre de garage 4


Exposition SUD-EST


Terrain piscinable OUI


Terrain arboré OUI


Prix de vente honoraires TTC inclus 495 000 €


Prix de vente honoraires TTC exclus 471 400 €


Honoraires TTC à la charge acquéreur 5,01 %


Taxe foncière annuelle 2 700 €


Cette annonce vous intéresse ?


* Champs obligatoires

* : Les informations recueillies sur ce formulaire sont enregistrées dans un fichier informatisé par La Boite Immo agissant comme Sous-traitant du traitement pour la gestion de la clientèle/prospects de l'Agence / du Réseau qui reste Responsable du Traitement de vos Données personnelles. La base légale du traitement repose sur l'intérêt légitime de l'Agence / du Réseau. Elles sont conservées jusqu'à demande de suppression et sont destinées à l'Agence / au Réseau. Conformément à la loi « informatique et libertés », vous disposez des droits d’accès, de rectification, d’effacement, d’opposition, de limitation et de portabilité de vos données. Vous pouvez retirer votre consentement à tout moment en contactant directement l’Agence / Le Réseau. Consultez le site https://cnil.fr/fr pour plus d’informations sur vos droits. Si vous estimez, après avoir contacté l'Agence / le Réseau, que vos droits « Informatique et Libertés » ne sont pas respectés, vous pouvez adresser une réclamation à la CNIL. Nous vous informons de l’existence de la liste d'opposition au démarchage téléphonique « Bloctel », sur laquelle vous pouvez vous inscrire ici : https://www.bloctel.gouv.fr Dans le cadre de la protection des Données personnelles, nous vous invitons à ne pas inscrire de Données sensibles dans le champ de saisie libre.
Ce site est protégé par reCAPTCHA, les Politiques de Confidentialité et les Conditions d'Utilisation de Google s'appliquent.

autres annonces immobilières correspondant à votre recherche

Les biens similaires pour : Vente Maison Simorre (32420)